About
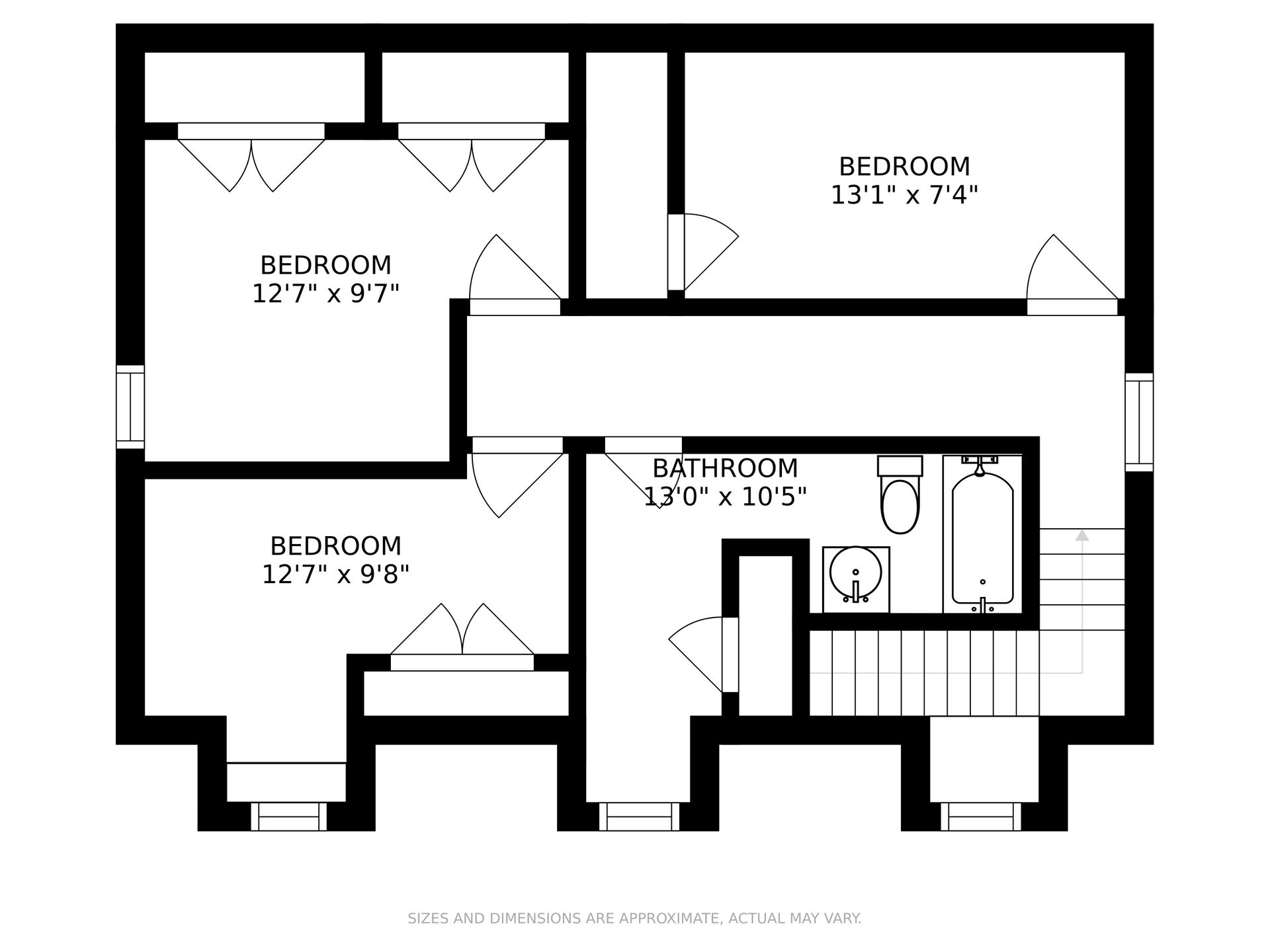
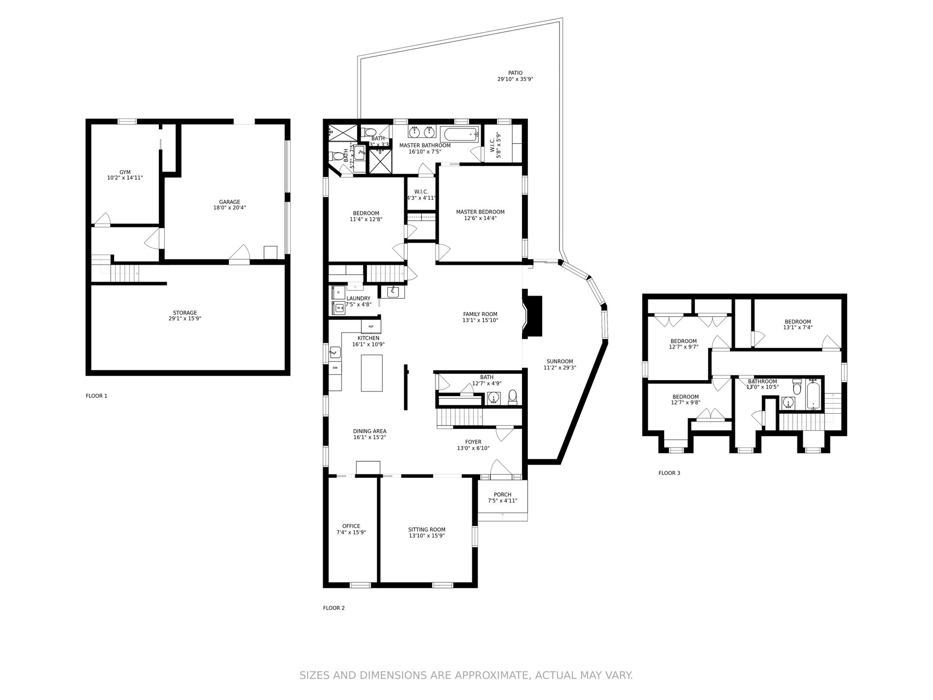
Here's your chance to live on a quiet street within stroll distance of all downtown Decatur has to offer. This home has it all! Main floor living with an open floorplan that flows effortlessly between the kitchen, family room, and a sunroom that will become your favorite spot. The kitchen is a chef's dream with a Wolf range and Subzero refrigerator. The oversized quartz island adds to your storage as well as room for everyone to gather. The owner's suite is a welcome retreat with a reclaimed wood accent wall and renovated bath. The heated marble floors are luxurious in the winter! A second full bedroom and bath, as well as a study, dining/living room, and home office, round out the main floor. Three bright and cozy bedrooms upstairs with a full bath and a basement with a room that can flex as another home office or an exercise studio.
Gallery
Overview
- Price: Price upon request
- Living Space: 3590 sq. ft
- Bedrooms: 5
- Bathrooms: 3.5
- Lot Size: 0.1 Acres
Virtual Tour
Location
Contact
Liz Weinstein
REALTOR®
M: 678.575.0287 | O: 404.252.4908 | liz.weinstein@coldwellbankeratlanta.com
FindAnAtlantaHome.com
REALTOR®
M: 678.575.0287 | O: 404.252.4908 | liz.weinstein@coldwellbankeratlanta.com
FindAnAtlantaHome.com