About
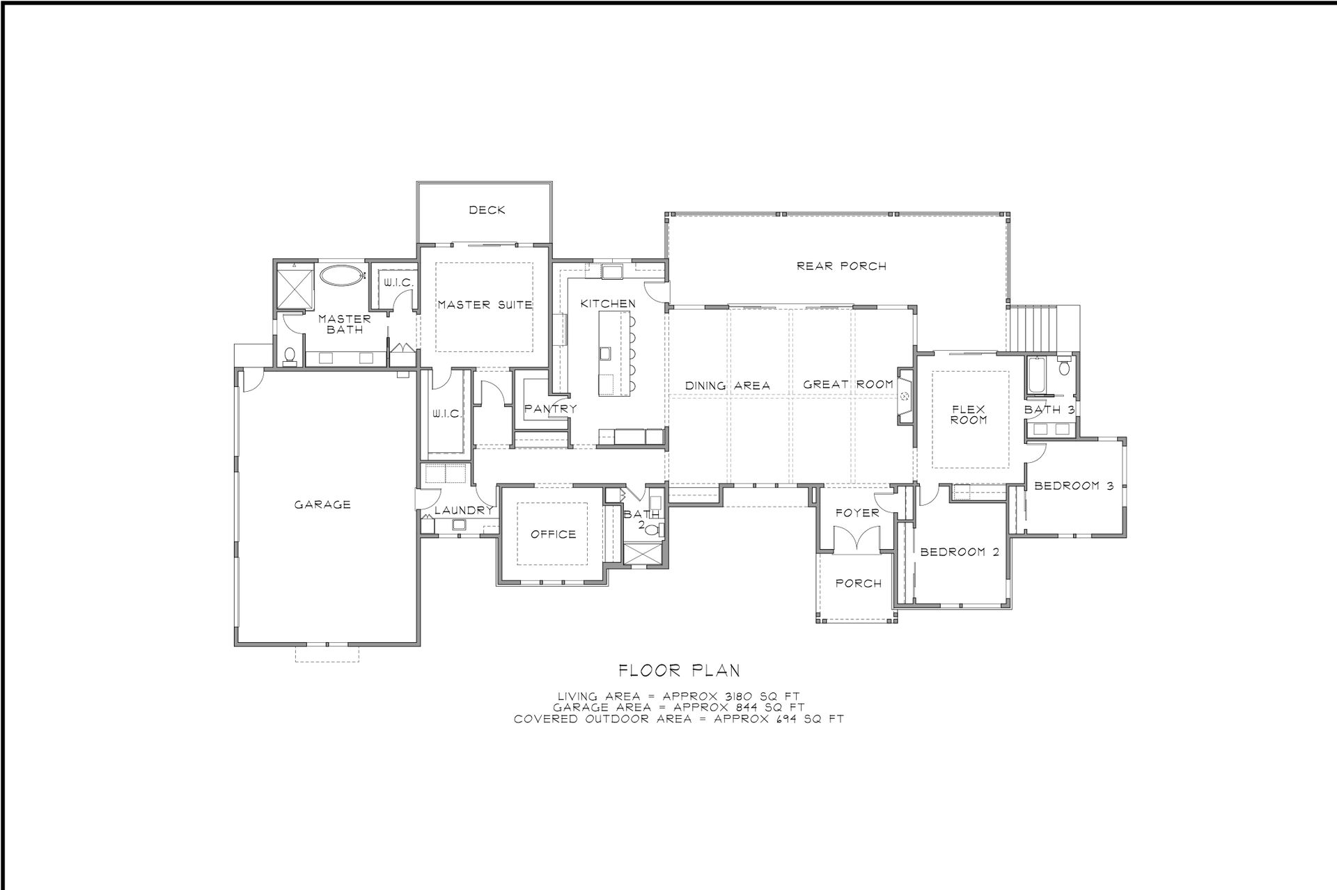
This exceptional newly constructed, single level, custom modern farmhouse located in the heart of Sonoma County with 3,180 square feet of living space, is set on 1.5 tranquil acres and has breathtaking views of the hills beyond. Blending architectural integrity with excellent craftsmanship, this beautiful home has 3 bedrooms plus an office, 3 full baths, and is elegantly appointed with extensive use of wide plank wood flooring and wired for audio in much of the home. The great room has a gas fireplace set in a floor to ceiling accent wall and 10 foot stacking glass sliders leading to the view deck. The dining area is open to a gourmet kitchen with quartz center island. Also featured is a flex/bonus room with direct access to the view deck. The primary bedroom suite has 2 walk-in closets and direct access to the view deck which takes full advantage of the views. Enjoy country living while still close to town.
Newly built in 2023
Set on 1.5 acre on a private lane
Single level
Circular driveway leads to covered entry with double glass doors
Wide plank hardwood flooring throughout most of the home
Approx. 3,180 square feet of living space
3 bedrooms plus office, 3 full baths
Open floor plan designed for comfort and convenience with great room featuring a gas fireplace set in a floor to ceiling accent wall, 10 foot tall stacking sliders to the view deck, vaulted ceiling, and wired for audio with built-in speakers
Dining area open to the kitchen and great room, built-in glass front display cabinets
Kitchen features quartz center island with prep sink and breakfast seating, Fisher & Paykel 6 burner gas range with griddle, double ovens, dishwasher, microwave drawer, built-in Dacor refrigerator/freezer, pot filler faucet, hood over range, soft close cabinets, walk-in pantry
Home office
Flex/game room with slider to rear view deck, built-in cabinets with wine refrigerator
Primary suite with ceiling fan, slider to rear view deck, 2-walk in closets, wired for audio with built-in speakers
Primary bath includes dual sinks with quartz counters, soaking tub with views, large shower stall with shower head and handheld wand
Covered view deck with 3 ceiling fans, wired for audio with built-in speakers
Gardens include lawn area, low maintenance landscaping
3-car attached garage with auto openers
Central heating and air conditioning systems
Tankless water heater
Septic system, fire suppression system
Gallery




















































Overview
- Price: Offered at $2,100,000
- Living Space: 3180 Sq. Ft.
- Beds: 3
- Baths: 3
- Lot Size: 1.5 Acres
Virtual Tour
Location
Contact

Luxury Property Specialist
M: 707.481.2672 | maryanne.veldkamp@cbnorcal.com
MaryAnneVeldkamp.com
CalRE #01034317
