About
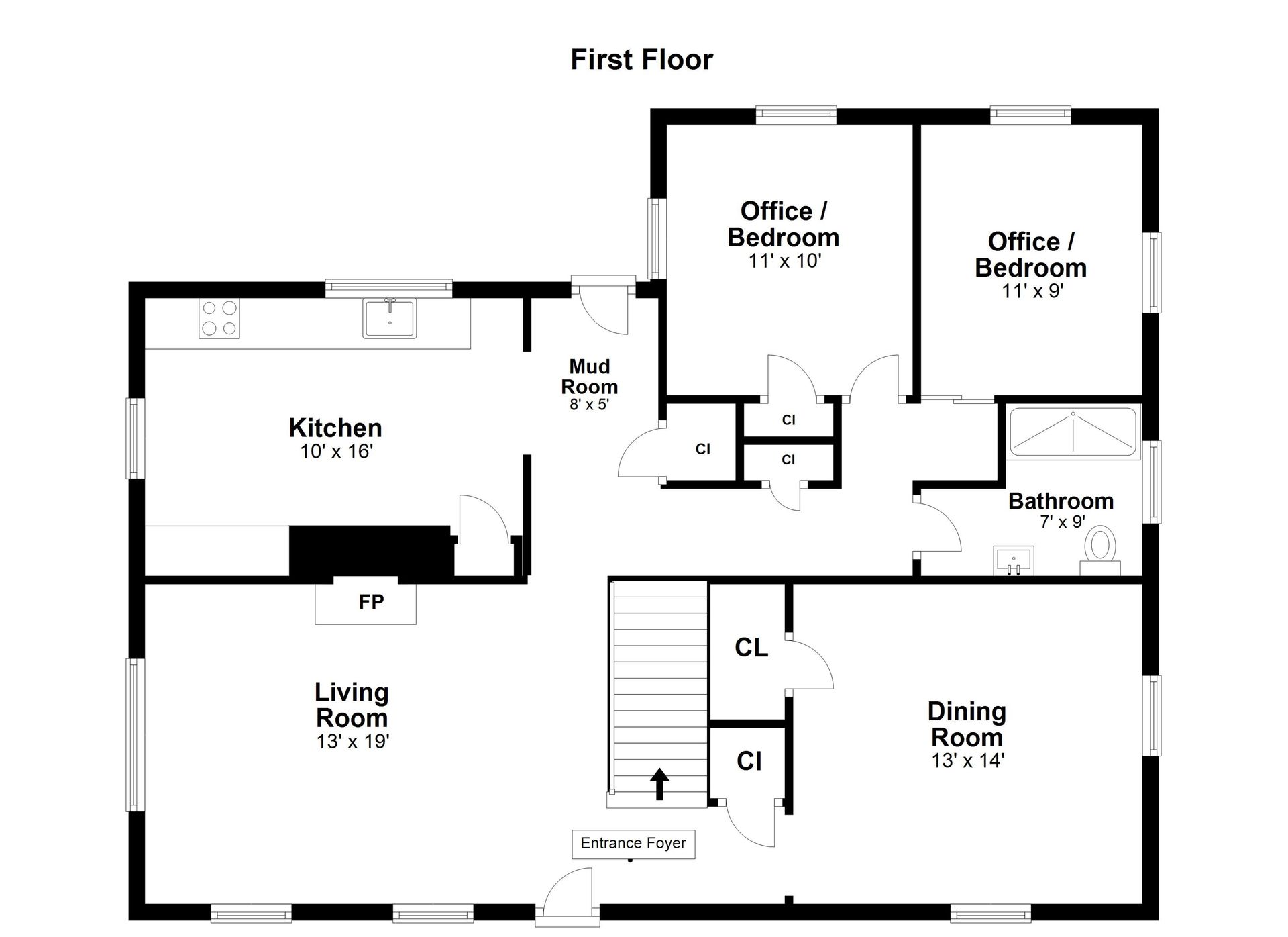
Investors take note of this great opportunity to own a four to five bedroom property 2.2 miles from Sacred Heart University on Park Avenue in Fairfield. Charming on the outside this spacious Fairfield cape is surprisingly expansive on the inside! With beautifully refinished hardwood floors throughout, visitors are greeted with a traditional colonial layout. Main floor includes center hall, living room with wood stove, dining room, kitchen with center island, two bedrooms, (one ideal as a home office) and full bathroom. The upper-level features three more bedrooms, and another full bathroom. Unfinished basement offers plenty of storage space. Two car garages in addition to a generous driveway with ample room for additional vehicles. Private fully fenced backyard with a terraced stone patio is a great example of privacy, personality and practicality. Convenient location, close to university, proximity to I-95 and the Merritt Parkway.
Gallery
Overview
- Price: Price upon request
- Living Space: 1940 Sq. Ft.
- Bedrooms: 4
- Baths: 2
- Lot Size: 0.34 Acres