About
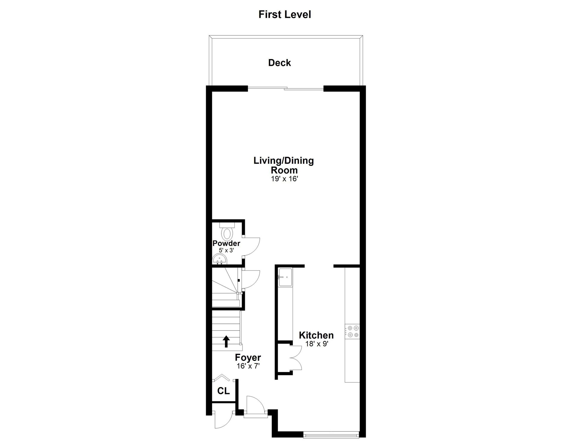
Welcome to this inviting tri-level townhouse in the desirable Cedar Gardens Condominium Complex. This home features two bedrooms and one and a half baths, offering a perfect blend of comfort and style. The main level boasts a spacious living room and dining room combo with beautiful wood floors, complemented by a sliding glass door that opens to a deck and yard. The updated kitchen is a chef’s delight, featuring granite countertops, a tile backsplash, white cabinets and a cozy breakfast nook by the double window. An entry hall with a powder room and stairs to the second floor completes this level. Upstairs, the primary bedroom impresses with two double closets and wood floors, while the second bedroom also offers a double closet and wood floors. A hall bath serves this level. The lower level provides an additional 397 square feet of living space perfect for a family room or home office. Also on the lower level is a convenient laundry room that is clean, bright and spacious. This townhouse is a must-see for anyone seeking a stylish and functional home in a great location.
"The photo(s) contained in this listing may have been created or enhanced using virtual staging software and therefore may not accurately reflect the current features in the room/home."
Gallery
Overview
- Price: Offered at $450,000
- Living Space: 1347 Sq. Ft.
- Beds: 2
- Baths: 1.1